Negozio mq. 65 Quadrilatero della Moda

Rif: 
AN012

Nel cuore del quadrilatero della moda, in un palazzo del 1700 completamente ristrutturato e vincolato dalla Soprintendenza, negozio di 65 mq con tre vetrine.
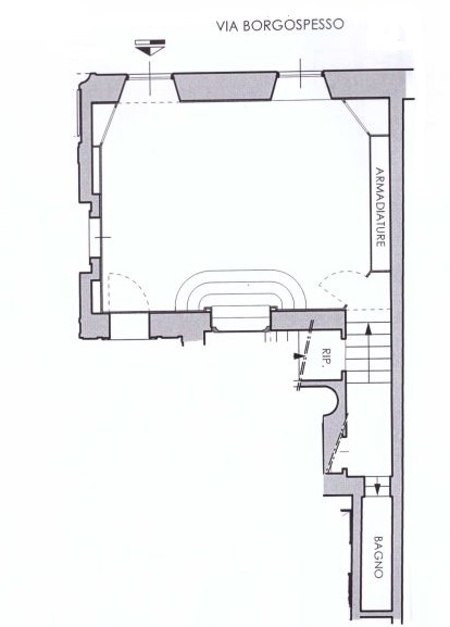
Composto da unico locale completamente ricoperto di boiseries antiche, con tre vetrine interne e due armadi, pavimento in seminato veneziano, lampadario centrale con due grandi appliques di ferro battuto. Doppio accesso dal cortile.
Completano il negozio uno sgabuzzino ed un bagno.

Riscaldamento e acqua calda centralizzati, predisposizione per aria condizionata.

Disponibilità dopo due mesi dalla firma del contratto di locazione.

Canone annuo € 110.000,00 oltre € 5.500di spese condominiali salvo conguaglio

Affitto: 
9.166 € / mese
Spese condominiali: 
5.500 € / annue

Dettagli:

Efficienza energetica: in attesa di certificazione
Classe energetica: 


Condizioni della proprietà: Ristrutturato
Spazio abitabile: 65 m2
Numero di piani: 3
Tipo di riscaldamento: Centralizzato


Caratteristiche


Ascensore
Aria condizionata
Doppi vetri

Nel cuore del quadrilatero della moda, in un palazzo del 1700 completamente ristrutturato e vincolato dalla Soprintendenza, negozio di 65 mq con tre vetrine.
Composto da unico locale completamente ricoperto di boiseries antiche, con tre vetrine interne e due armadi, pavimento in seminato veneziano, lampadario centrale con due grandi appliques di ferro battuto. Doppio accesso dal cortile.
Completano il negozio uno sgabuzzino ed un bagno.

Riscaldamento e acqua calda centralizzati, predisposizione per aria condizionata.

Disponibilità dopo due mesi dalla firma del contratto di locazione.

Canone annuo € 110.000,00 oltre € 5.500di spese condominiali salvo conguaglio

Indirizzo:

Via Borgospesso
Quadrilatero Moda
20121 Milano MI

Contattaci per questo immobile

 
1 Inizio 2 Completo